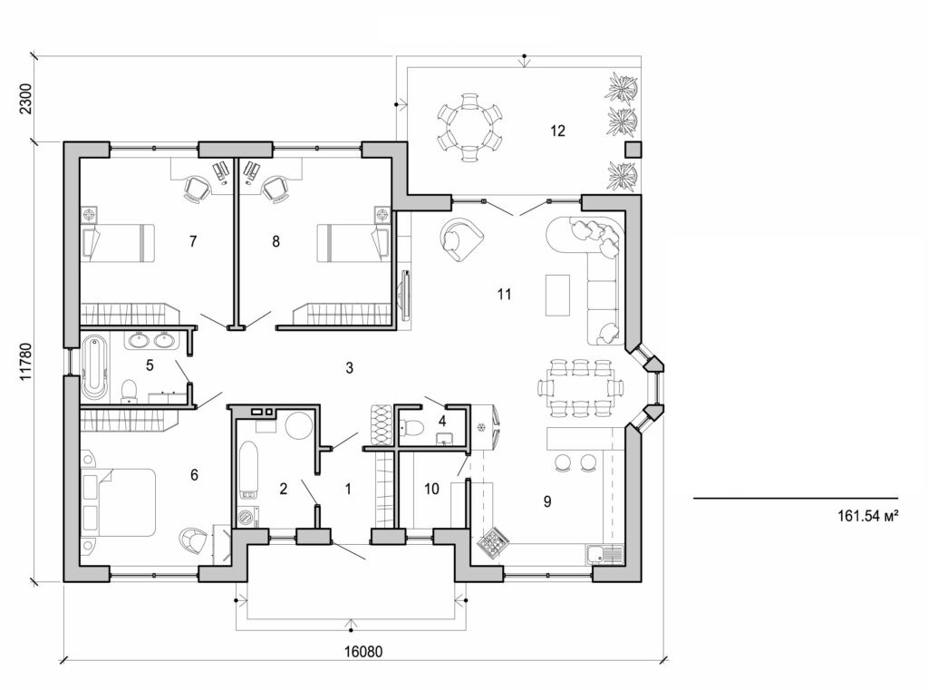
One storey home

161 m² total area / 1733 ft² 1 floor bedrooms
One storey home
Click to view

Interested in this plan?

Contact us to get full blueprints, construction estimate, or adapt this plan to your plot and needs.

Request more information

Visualization gallery