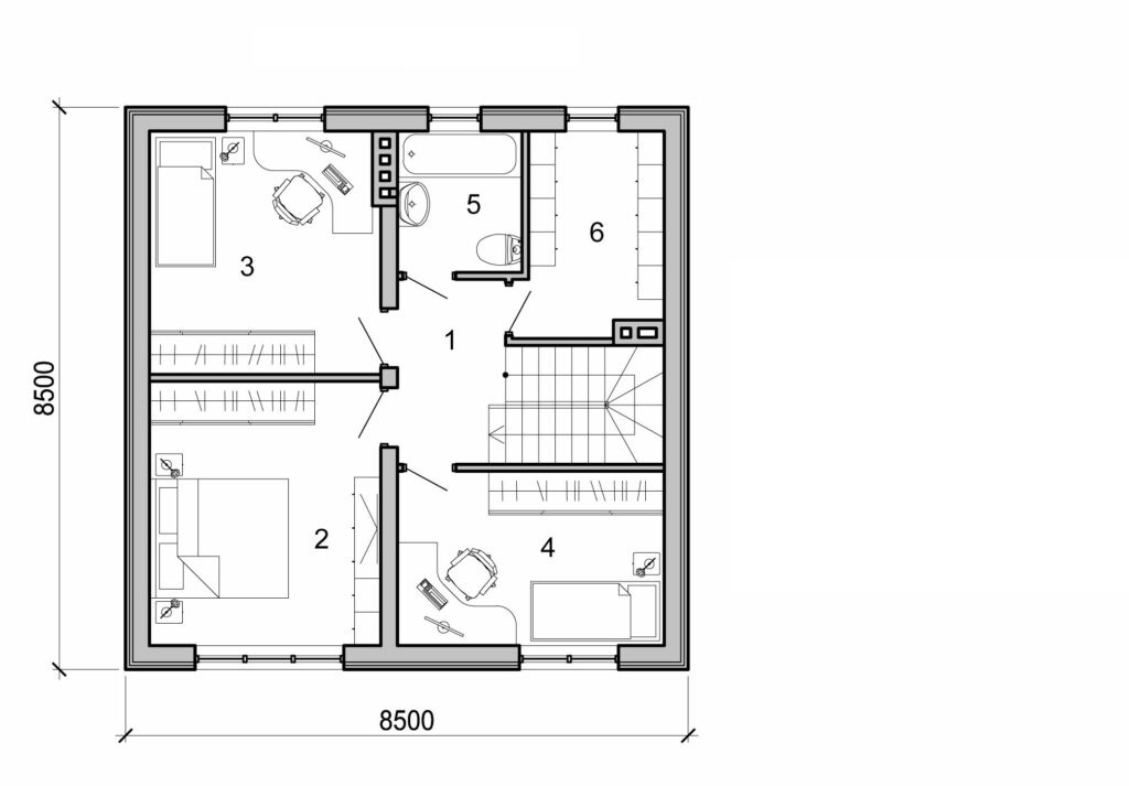
Two Storey House

72 m² total area / 775 ft² 2 floors bedrooms
Two Storey House
Click to view

Interested in this plan?

Contact us to get full blueprints, construction estimate, or adapt this plan to your plot and needs.

Request more information

Visualization gallery