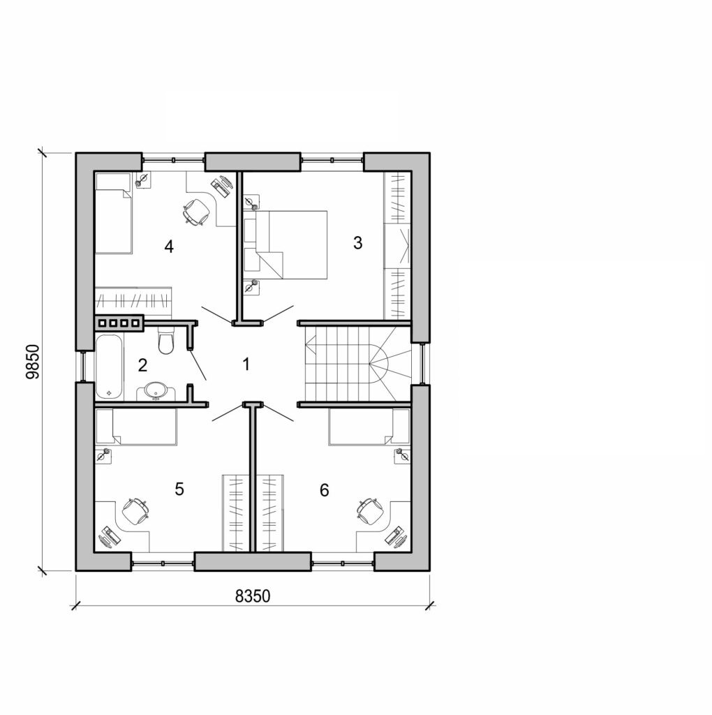
Great two story house

162 m² total area / 1744 ft² 2 floors bedrooms
Great two story house
Click to view

Description

2. Great two story house

Interested in this plan?

Contact us to get full blueprints, construction estimate, or adapt this plan to your plot and needs.

Request more information

Visualization gallery