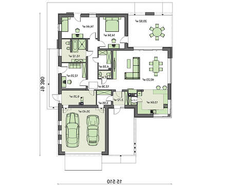
Presentable mansion with a spacious reception area

199 m² total area / 2142 ft² 1 floor 3 bedrooms 2 bathrooms
Presentable mansion with a spacious reception area
Click to view

Description

Presentable mansion with a spacious reception area Number of floors: 1 Total area: 198.96 m2 Living Area: 81.84 m2 House height: 7.09 m Ceiling Height: 2.80 m Roof Angle: 30 ° Roof area: 290.03 m2 Number of bedrooms: 3 Number of bathrooms: 2 Garage: Two-car garage Minimum plot size (length): 27.00 m Minimum plot size (width): 24.00 m Built-up area: 338.22 m2 Materials: Walls: aerated concrete blocks Ceiling: on wooden beams Roofing: metal tile, ceramic tile, bitumen Foundation: monolithic tape

Interested in this plan?

Contact us to get full blueprints, construction estimate, or adapt this plan to your plot and needs.

Request more information

Visualization gallery