Beautiful country house with two floors and five rooms

158 m² total area / 1701 ft² 2 floors 4 bedrooms 2 bathrooms
Beautiful country house with two floors and five rooms
Click to view

Description

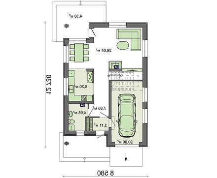
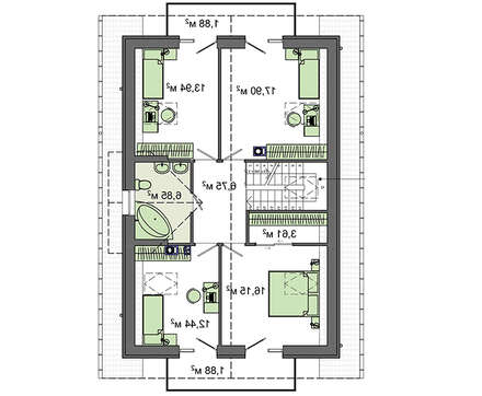
Beautiful country house with two floors and five rooms Number of floors: 2 Total area: 157.94 m2 Living Area: 88.47 m2 House height: 8.06 m Ceiling Height: 2.80 m Roof Angle: 43 ° Roof area: 161.00 m2 Number of bedrooms: 4 Number of bathrooms: 2 Garage: Garage for one car Minimum plot size (length): 16.30 m Minimum plot size (width): 20.90 m Built-up area: 138.63 m2 Materials: Walls: aerated concrete blocks Overlap: monolithic overlap Roofing: metal tile, ceramic tile, bitumen Foundation: monolithic tape

Interested in this plan?

Contact us to get full blueprints, construction estimate, or adapt this plan to your plot and needs.

Request more information

Visualization gallery