The project of a two-storey modern cottage with a garage

172 m² total area / 1851 ft² 2 floors 4 bedrooms 2 bathrooms
The project of a two-storey modern cottage with a garage
Click to view

Description

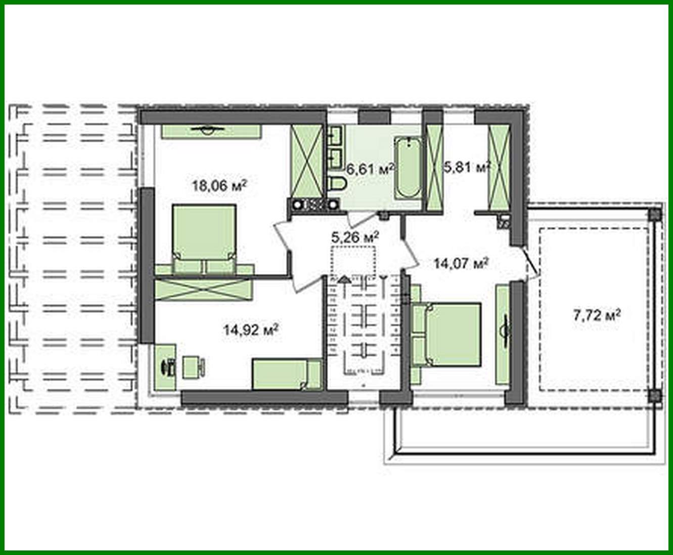
The project of a two-storey modern cottage with a garage Number of floors: 2 Total area: 172.25 m2 Living Area: 85.13 m2 House height: 8.65 m Ceiling Height: 2.80 m Roof Angle: 25 ° Roof area: 139.00 m2 Cubic capacity: 362.00 m3 Number of bedrooms: 4 Number of bathrooms: 2 Garage: Garage for one car Minimum plot size (length): 16.00 m Minimum plot size (width): 22.00 m Built-up area: 161 m2 Materials: Walls: aerated concrete blocks Overlap: floor slabs Roofing: metal tile, ceramic tile, bitumen Foundation: monolithic tape

Interested in this plan?

Contact us to get full blueprints, construction estimate, or adapt this plan to your plot and needs.

Request more information

Visualization gallery