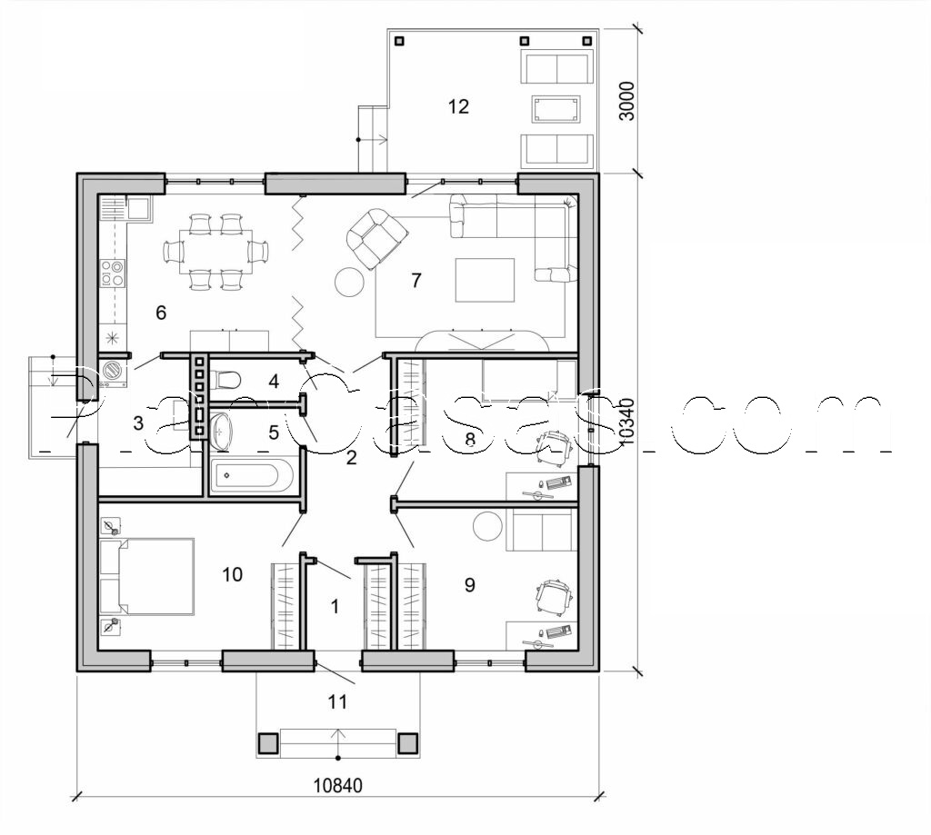
Brick One story home

118 m² total area / 1270 ft² 1 floor bedrooms
Brick One story home
Click to view

Description

4. Brick One story home

Interested in this plan?

Contact us to get full blueprints, construction estimate, or adapt this plan to your plot and needs.

Request more information

Visualization gallery