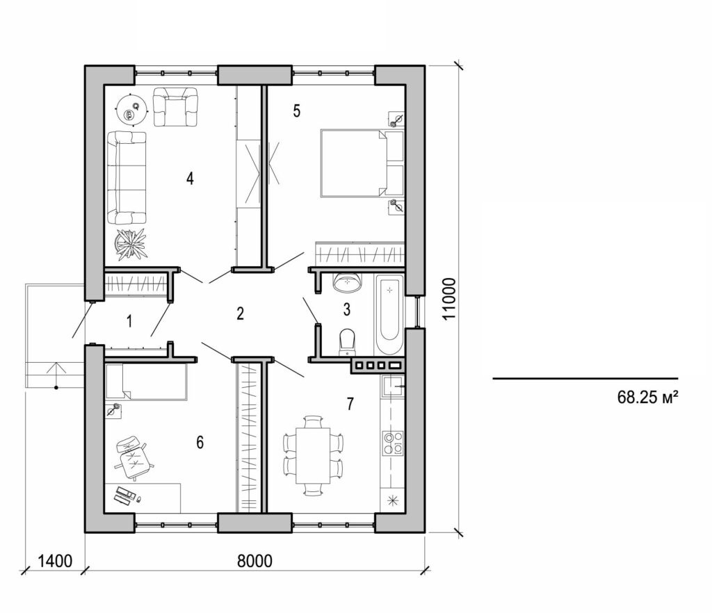
Little home

68 m² total area / 732 ft² 1 floor bedrooms
Little home
Click to view

Interested in this plan?

Contact us to get full blueprints, construction estimate, or adapt this plan to your plot and needs.

Request more information

Visualization gallery