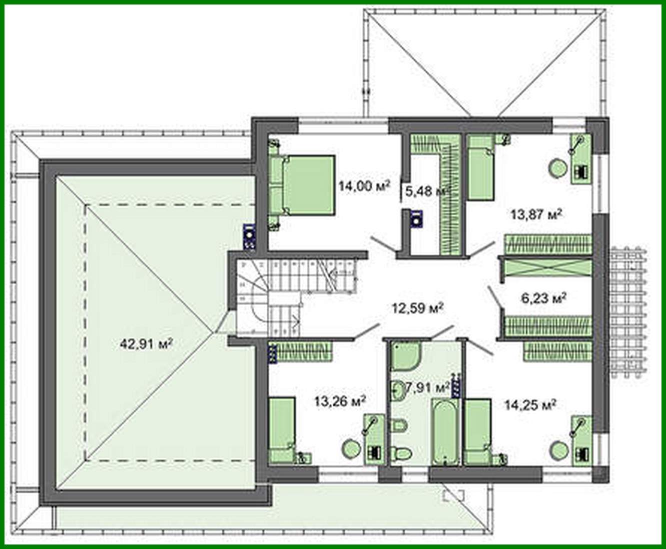
Five-bedroom townhouse with spacious garage

284 m² total area / 3057 ft² 2 floors 5 bedrooms 2 bathrooms
Five-bedroom townhouse with spacious garage
Click to view

Description

Five-bedroom townhouse with spacious garage Number of floors: 2 Total area: 284.22 m2 Living Area: 104.56 m2 House height: 10.18 m Ceiling Height: 2.80 m Roof Angle: 30 ° Roof area: 327.00 m2 Number of bedrooms: 5 Number of bathrooms: 2 Garage: Two-car garage Minimum plot size (length): 25.00 m Minimum plot size (width): 19.62 m Built-up area: 262.19 m2 Materials: Walls: aerated concrete blocks Overlap: monolithic overlap Roofing: ceramic tile, metal tile, cement-sand tile Foundation: monolithic tape

Interested in this plan?

Contact us to get full blueprints, construction estimate, or adapt this plan to your plot and needs.

Request more information

Visualization gallery