High-tech fashionable two-story house project

224 m² total area / 2411 ft² 2 floors 4 bedrooms 2 bathrooms
High-tech fashionable two-story house project
Click to view

Description

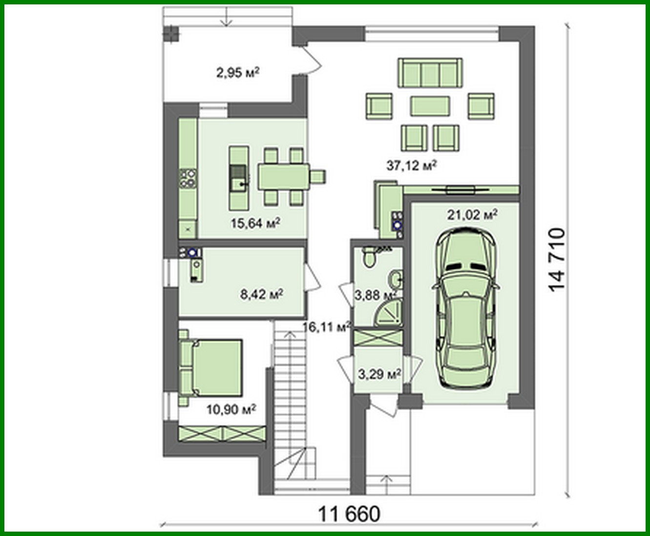
High-tech fashionable two-story house project Number of floors: 2 Total area: 223.83 m2 Living Area: 106.13 m2 House height: 8.40 m Ceiling Height: 2.80 m Roof Angle: 1.5 ° Roof area: 126.10 m2 Number of bedrooms: 4 Number of bathrooms: 2 Garage: Garage for one car Minimum plot size (length): 19.00 m Minimum plot size (width): 22.00 m Built-up area: 170.35 m2 Materials: Walls: aerated concrete blocks Overlap: monolithic overlap Roofing: PVC membrane Foundation: monolithic tape band

Interested in this plan?

Contact us to get full blueprints, construction estimate, or adapt this plan to your plot and needs.

Request more information

Visualization gallery