The project of a stylish bright beautiful two-story house with a garage and a terrace

178 m² total area / 1916 ft² 2 floors 4 bedrooms 3 bathrooms
The project of a stylish bright beautiful two-story house with a garage and a terrace
Click to view

Description

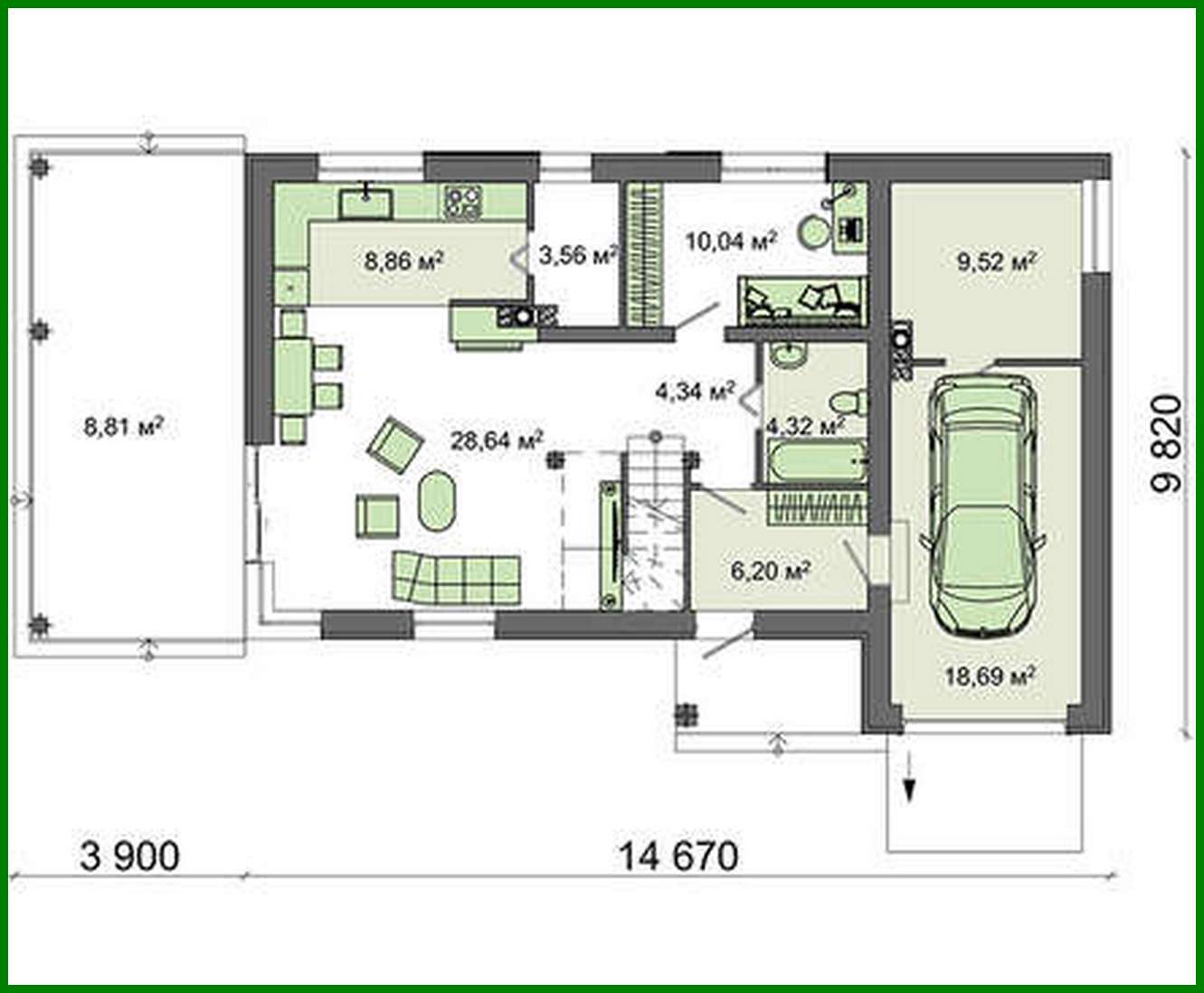
The project of a stylish bright beautiful two-story house with a garage and a terrace Number of floors: 2 Total area: 177.92 m2 Living Area: 82.16 m2 House height: 8.60 m Ceiling Height: 2.80 m Roof Angle: 22 ° Roof Area: 124.50 m2 Cubic capacity: 426.00 m3 Number of bedrooms: 4 Number of bathrooms: 3 Garage: Garage for one car Minimum plot size (length): 17.00 m Minimum plot size (width): 21.00 m Built-up area: 174.45 m2 Materials: Walls: aerated concrete blocks Overlap: monolithic overlap Roofing: metal tile, ceramic tile, bitumen Foundation: monolithic tape

Interested in this plan?

Contact us to get full blueprints, construction estimate, or adapt this plan to your plot and needs.

Request more information

Visualization gallery