Project of a small house with a gable roof attic

95 m² total area / 1023 ft² 1 floor 4 bedrooms 2 bathrooms
Project of a small house with a gable roof attic
Click to view

Description

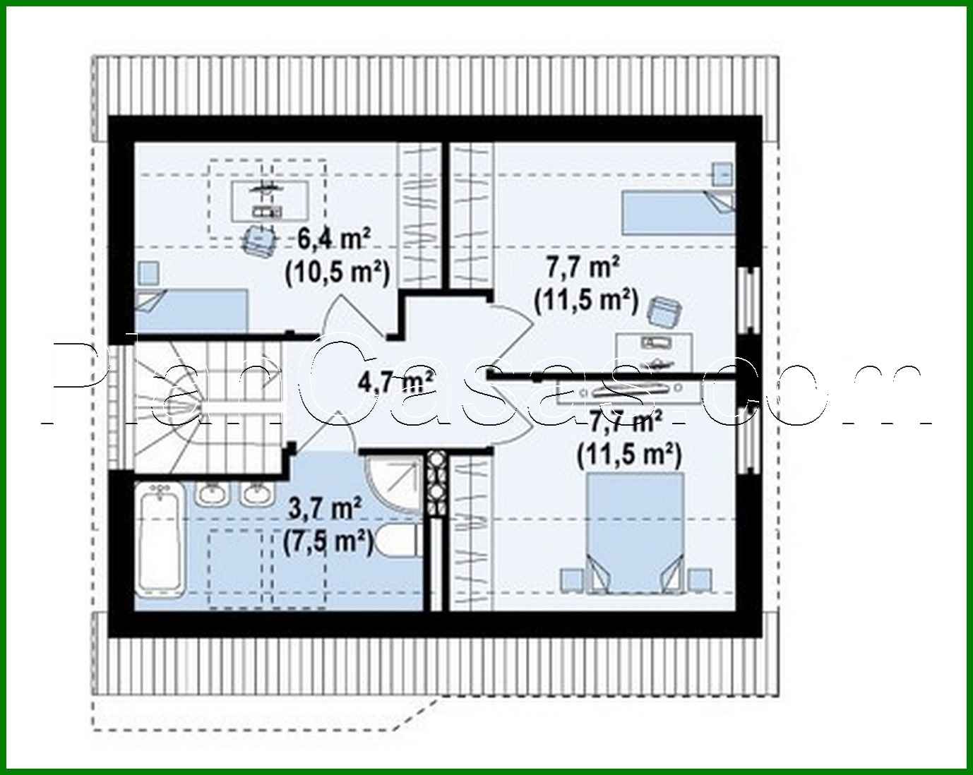
Project of a small house with a gable roof attic Number of floors: 2 Total area: 94.80 m2 Living Area: 79.10 m2 House height: 7.14 m Ceiling Height: 2.80 m Roof Angle: 40 ° Roof area: 97.00 m2 Cubature: 296.00 m3 Number of bedrooms: 4 Number of bathrooms: 2 Minimum plot size (length): 15.14 m Minimum plot size (width): 15.94 m Built-up area: 63 m2 Materials: Walls: aerated concrete, ceramic blocks Overlap: monolithic overlap Roofing: ceramic tile, metal tile, cement-sand tile Foundation: monolithic tape band

Interested in this plan?

Contact us to get full blueprints, construction estimate, or adapt this plan to your plot and needs.

Request more information

Visualization gallery