House project for a narrow plot, with a garage and a terrace above it

153 m² total area / 1647 ft² 2 floors 3 bedrooms 3 bathrooms
House project for a narrow plot, with a garage and a terrace above it
Click to view

Description

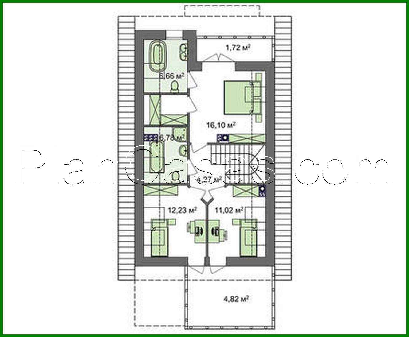
House project for a narrow plot, with a garage and a terrace above it Number of floors: 2 Total area: 153.09 m2 Living Area: 67.35 m2 House height: 7.43 m Ceiling Height: 2.80 m Roof Angle: 37 ° Roof area: 145.60 m2 Cubic capacity: 358.70 m3 Number of bedrooms: 3 Number of bathrooms: 3 Garage: Garage for one car Minimum plot size (length): 15.44 m Minimum plot size (width): 23.54 m Built-up area: 106.5 m2 Materials: Walls: aerated concrete, ceramic blocks Overlap: monolithic overlap Roofing: metal tile, ceramic tile, bitumen Foundation: monolithic tape

Interested in this plan?

Contact us to get full blueprints, construction estimate, or adapt this plan to your plot and needs.

Request more information

Visualization gallery