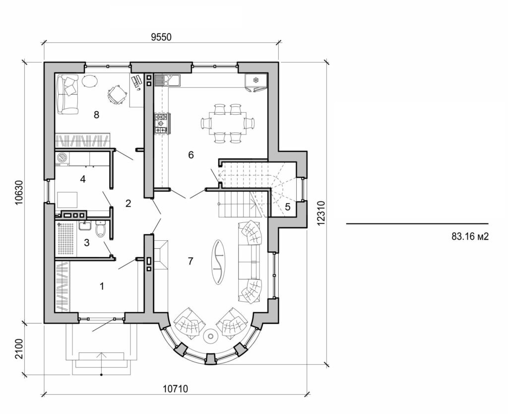
A beautiful cottage

164 m² total area / 1765 ft² 2 floors bedrooms
A beautiful cottage
Click to view

Interested in this plan?

Contact us to get full blueprints, construction estimate, or adapt this plan to your plot and needs.

Request more information

Visualization gallery