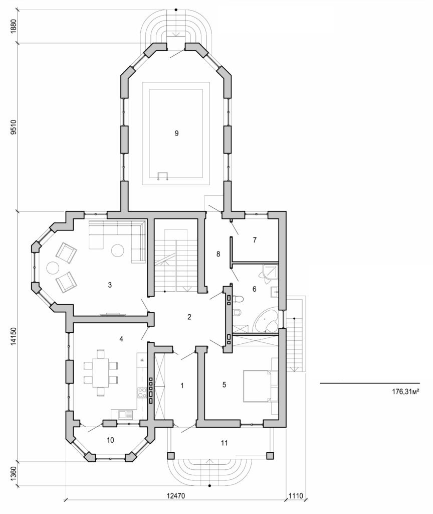
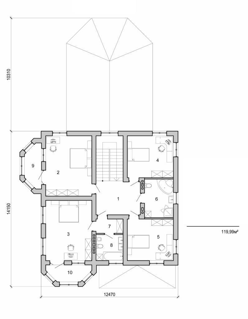
Two storey house project

404 m² total area / 4349 ft² 2 floors bedrooms
Two storey house project
Click to view

Interested in this plan?

Contact us to get full blueprints, construction estimate, or adapt this plan to your plot and needs.

Request more information

Visualization gallery